Property
Beds
4
Full Baths
3
1/2 Baths
1
Year Built
2000
Sq.Footage
2,996
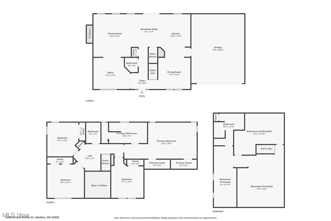
Welcome to this beautifully updated 4-bedroom, 3.5-bath colonial tucked away on a peaceful cul-de-sac in one of Medina's most desirable communities. Step inside to find a warm, inviting layout with stylish updates throughout and plenty of space for everyday living and entertaining. The first floor offers 9 ft ceilings in your living room/office, half bath, dining room, family room with gas fireplace and an eat in kitchen with 42 in cabinets, an island and granite countertops. Upstairs are 3 generous sized bedrooms that share a full bath and an amazing master bedroom with his and her closets and a beautiful updated bath with a custom tiled walk in shower, double vanity and a stackable washer and dryer. Don't forget to see the basement, accessed through the hidden bookcase door in the kitchen! The chalkboard walled steps lead into a stylish speakeasy-inspired bar, a one-of-a-kind feature that turns the finished basement into the ultimate entertaining space. A Lego inspired craft/play room and a newer full bath with a custom shower and a second set of stackable washer and dryer, and a storage room finish off the space. Whether you're hosting friends or enjoying quiet evenings at home, this backyard was made to be enjoyed, fully fenced with a water feature, fire pit area, 2 separate concrete pads with a gazebo and pergola, a stamped concrete patio, and an oversized 16x12 shed. Glenmoore Farms includes access to a scenic 2-mile walking trail, ideal for morning jogs, evening strolls, or walks with the dog. Modern updates, a unique touch of character, and a wonderful community setting, this is Medina living at its best!
Features & Amenities
Interior
-
Other Interior Features
Ceiling Fan(s), Double Vanity, Eat-in Kitchen, His and Hers Closets, Kitchen Island
-
Total Bedrooms
4
-
Bathrooms
3
-
1/2 Bathrooms
1
-
Above Grade Finished Area
2296.0
-
Basement YN
YES
-
Cooling YN
YES
-
Cooling
Ceiling Fan(s), Central Air
-
Fireplace YN
YES
-
Heating YN
YES
-
Heating
Natural Gas, Forced Air
-
Pet friendly
N/A
Exterior
-
Garage
Yes
-
Garage spaces
2
-
Construction Materials
Vinyl Siding
-
Parking
Attached, Garage
-
Patio and Porch Features
Patio
-
Pool
No
-
Waterfront YN
NO
Area & Lot
-
Lot Features
Cul-De-Sac, Landscaped
-
Lot Size(acres)
0.35
-
Property Type
Residential
-
Property Sub Type
Single Family Residence
-
Architectural Style
Colonial
Price
-
Sales Price
$439,900
-
Tax Amount
5055.0
-
Sq. Footage
2, 996
-
Price/SqFt
$146
HOA
-
Association
YES
-
Association Fee
$230
-
Association Fee Frequency
N/A
-
Association Fee Includes
N/A
School District
-
Elementary School
Medina CSD - 5206
-
Middle School
N/A
-
High School
N/A
Property Features
-
Stories
2
-
Sewer
Public Sewer
-
Water Source
Public
Schedule a Showing
Showing scheduled successfully.
Mortgage calculator
Estimate your monthly mortgage payment, including the principal and interest, property taxes, and HOA. Adjust the values to generate a more accurate rate.
Your payment
Principal and Interest:
$
Property taxes:
$
HOA fees:
$
Total loan payment:
$
Total interest amount:
$
Location
County
Medina
Elementary School
Medina CSD - 5206
Middle School
High School
Listing Courtesy of Cheryl A Treb , RE/MAX Crossroads Properties
RealHub Information is provided exclusively for consumers' personal, non-commercial use, and it may not be used for any purpose other than to identify prospective properties consumers may be interested in purchasing. All information deemed reliable but not guaranteed and should be independently verified. All properties are subject to prior sale, change or withdrawal. RealHub website owner shall not be responsible for any typographical errors, misinformation, misprints and shall be held totally harmless.

FOUNDER
TysonHartzler
Call Tyson today to schedule a private showing.

* Listings on this website come from the FMLS IDX Compilation and may be held by brokerage firms other than the owner of this website. The listing brokerage is identified in any listing details. Information is deemed reliable but is not guaranteed. If you believe any FMLS listing contains material that infringes your copyrighted work please click here to review our DMCA policy and learn how to submit a takedown request.© 2024 FMLS.
