Property
Beds
3
Full Baths
2
1/2 Baths
None
Year Built
1974
Sq.Footage
2,552
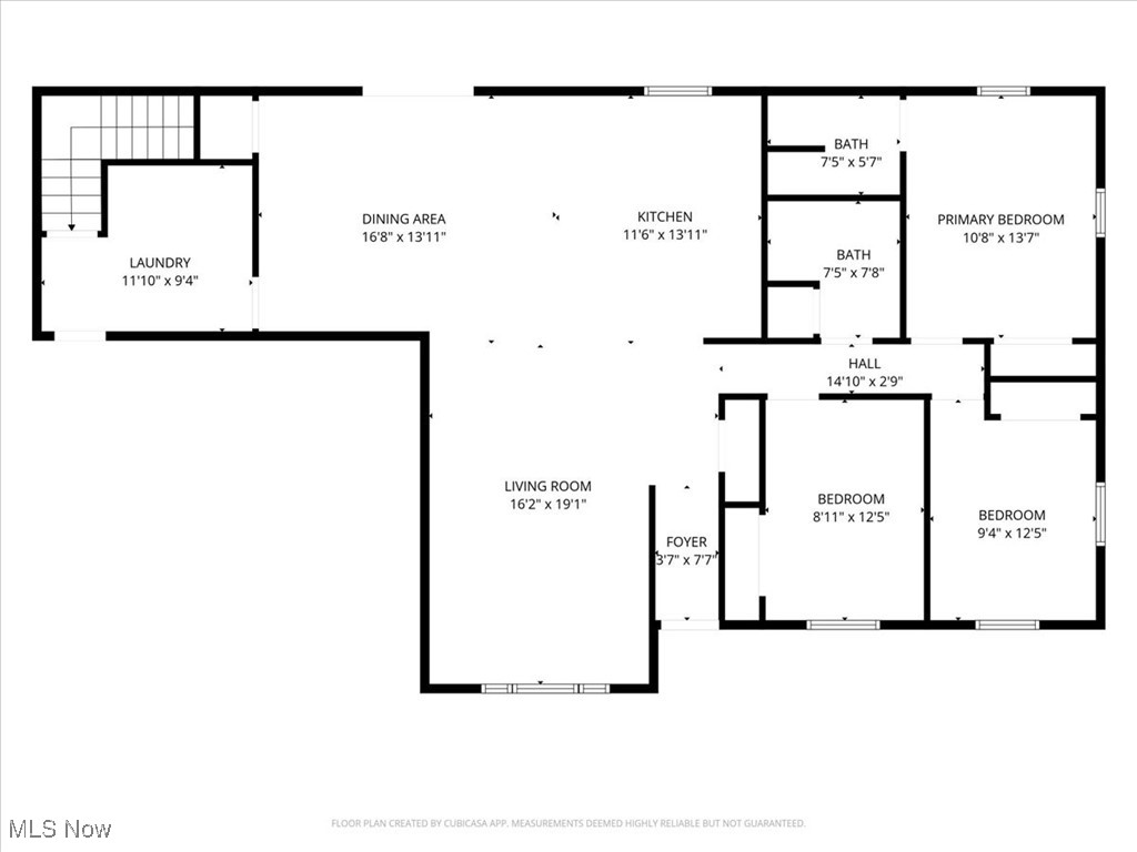
Just Listed! Welcome to this beautifully updated 3-bedroom, 2-bath ranch in the Midview School District, situated on 1.26 acres. This open-concept home features a brand-new kitchen with granite countertops, top-of-the-line KitchenAid Café Series appliances, including a double oven. The spacious living and dining areas flow seamlessly, complemented by first-floor laundry for convenience. The finished basement is a showstopper with a large office space, a huge recreation room—all with Nature Stone flooring—plus abundant storage. Step outside to enjoy a pergola for relaxing sunsets and a large open backyard, perfect for gatherings. Recent updates include: New insulation (2025) Replacement windows (2021) with lifetime warranty Sliding glass door (2021) Glass block windows in basement (2022) Septic system (2021) Kitchen, flooring, ceilings, lighting, and appliances (2025) Own your piece of the country with modern updates and space to grow!
Features & Amenities
Interior
-
Other Interior Features
Breakfast Bar, Entrance Foyer, Granite Counters, Open Floorplan, Recessed Lighting, Storage
-
Total Bedrooms
3
-
Bathrooms
2
-
Above Grade Finished Area
1544.0
-
Basement YN
YES
-
Cooling YN
YES
-
Cooling
Central Air
-
Fireplace YN
NO
-
Heating YN
YES
-
Heating
Natural Gas, Forced Air
-
Main Level Bedrooms
3
-
Pet friendly
N/A
Exterior
-
Garage
Yes
-
Garage spaces
2
-
Construction Materials
Blown-In Insulation, Brick, Vinyl Siding
-
Other Exterior Features
Fire Pit, Storage
-
Parking
Attached, Concrete, Garage Faces Front, Garage, Garage Door Opener, Paved, Workshop in Garage
-
Patio and Porch Features
Front Porch, Patio, Porch
-
Pool
No
-
Waterfront YN
NO
Area & Lot
-
Lot Features
Back Yard, Corners Marked, Landscaped, Level, Rectangular Lot
-
Lot Size(acres)
1.26
-
Property Type
Residential
-
Property Sub Type
Single Family Residence
-
Architectural Style
Ranch
Price
-
Sales Price
$399,000
-
Tax Amount
3089.0
-
Sq. Footage
2, 552
-
Price/SqFt
$156
HOA
-
Association
NO
School District
-
Elementary School
Midview LSD - 4710
-
Middle School
N/A
-
High School
N/A
Property Features
-
Stories
1
-
Sewer
Septic Tank
-
Water Source
Public
Schedule a Showing
Showing scheduled successfully.
Mortgage calculator
Estimate your monthly mortgage payment, including the principal and interest, property taxes, and HOA. Adjust the values to generate a more accurate rate.
Your payment
Principal and Interest:
$
Property taxes:
$
HOA fees:
$
Total loan payment:
$
Total interest amount:
$
Location
County
Lorain
Elementary School
Midview LSD - 4710
Middle School
High School
Listing Courtesy of Janet R Beane , Russell Real Estate Services
RealHub Information is provided exclusively for consumers' personal, non-commercial use, and it may not be used for any purpose other than to identify prospective properties consumers may be interested in purchasing. All information deemed reliable but not guaranteed and should be independently verified. All properties are subject to prior sale, change or withdrawal. RealHub website owner shall not be responsible for any typographical errors, misinformation, misprints and shall be held totally harmless.

FOUNDER
TysonHartzler
Call Tyson today to schedule a private showing.

* Listings on this website come from the FMLS IDX Compilation and may be held by brokerage firms other than the owner of this website. The listing brokerage is identified in any listing details. Information is deemed reliable but is not guaranteed. If you believe any FMLS listing contains material that infringes your copyrighted work please click here to review our DMCA policy and learn how to submit a takedown request.© 2024 FMLS.
