Property
Beds
5
Full Baths
3
1/2 Baths
None
Year Built
1945
Sq.Footage
3,038
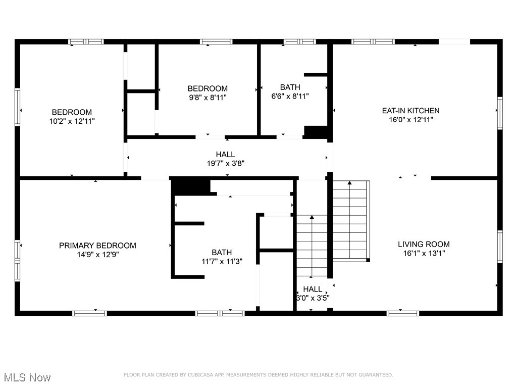
What a unique opportunity! Now is your chance to own this amazing property featuring 4-5 bedrooms, 3 full bathrooms, 2 full kitchens, 4+ car garage on 3 acres!! Great location just 5 min to the Nimisila Reservoir & 4 min to downtown Canal Fulton. Whether you are needing main floor living, have a large family, are taking care of aging family members or need multi-generational living, this is the perfect fit! The main/1st floor offers a formal living room w/ a fireplace & opens to the dining area. Around the corner is a gorgeous full kitchen! Complete w/ gas range, dishwasher, stainless fridge & tons of storage. Tucked behind the kitchen is the utility/laundry room. On the other side is a gorgeous full bathroom! Granite topped cherry wood vanity, large walk-in shower, private commode & a walk-in closet. Then we have a 1st floor bedroom (just needs a door) too! The next level features a spacious living room (most recently used as a dining room) & a large eat-in kitchen. The kitchen comes fully applianced, has tons of natural light & gives access to the deck. Down the hall is the 2nd full bathroom & 3 bedrooms. The master includes a 3rd full bathroom too! Up one more level to find the last bedroom w/ a huge closet. Are you a car enthusiast, mechanic or just want the biggest man cave ever? Welcome to your new heated garage! If you are not sold yet, step out onto the composite deck, w/ vinyl railing & Pergola, & take in this stunning property. Just a hair under 3 acres & running deep into the woods! Don't forget the large shed, oversized concrete driveway w/ turnaround & cutest covered front porch! Lower level completely remodeled about 5 years ago. Upper kitchen redone about 2015. New septic in 2022, furnace, A/C, electric panel upgrade & gutter guards all approx 2020 & water heater about 4 years old. Family has owned, occupied & loved the home for the last 62 years Don't let this pass you by! Call to take a look and get your offer in today!
Features & Amenities
Interior
-
Total Bedrooms
5
-
Bathrooms
3
-
Above Grade Finished Area
3038.0
-
Basement YN
YES
-
Cooling YN
YES
-
Cooling
Central Air
-
Fireplace YN
YES
-
Heating YN
YES
-
Heating
Natural Gas, Forced Air
-
Main Level Bedrooms
1
-
Pet friendly
N/A
Exterior
-
Garage
Yes
-
Garage spaces
4
-
Construction Materials
Vinyl Siding
-
Parking
Concrete
-
Patio and Porch Features
Covered, Deck, Wrap Around
-
Pool
No
-
Waterfront YN
NO
Area & Lot
-
Lot Size(acres)
2.94
-
Property Type
Residential
-
Property Sub Type
Single Family Residence
-
Architectural Style
Conventional
Price
-
Sales Price
$385,000
-
Tax Amount
3521.0
-
Sq. Footage
3, 038
-
Price/SqFt
$126
HOA
-
Association
NO
School District
-
Elementary School
Manchester LSD Summit- 7706
-
Middle School
N/A
-
High School
N/A
Property Features
-
Stories
3
-
Sewer
Septic Tank
-
Water Source
Well
Schedule a Showing
Showing scheduled successfully.
Mortgage calculator
Estimate your monthly mortgage payment, including the principal and interest, property taxes, and HOA. Adjust the values to generate a more accurate rate.
Your payment
Principal and Interest:
$
Property taxes:
$
HOA fees:
$
Total loan payment:
$
Total interest amount:
$
Location
County
Summit
Elementary School
Manchester LSD Summit- 7706
Middle School
High School
Listing Courtesy of Lisa Hughes , RE/MAX Trends Realty
RealHub Information is provided exclusively for consumers' personal, non-commercial use, and it may not be used for any purpose other than to identify prospective properties consumers may be interested in purchasing. All information deemed reliable but not guaranteed and should be independently verified. All properties are subject to prior sale, change or withdrawal. RealHub website owner shall not be responsible for any typographical errors, misinformation, misprints and shall be held totally harmless.

FOUNDER
TysonHartzler
Call Tyson today to schedule a private showing.

* Listings on this website come from the FMLS IDX Compilation and may be held by brokerage firms other than the owner of this website. The listing brokerage is identified in any listing details. Information is deemed reliable but is not guaranteed. If you believe any FMLS listing contains material that infringes your copyrighted work please click here to review our DMCA policy and learn how to submit a takedown request.© 2024 FMLS.
