Property
Beds
9
Full Baths
5
1/2 Baths
None
Year Built
1900
Sq.Footage
4,109
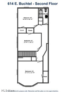
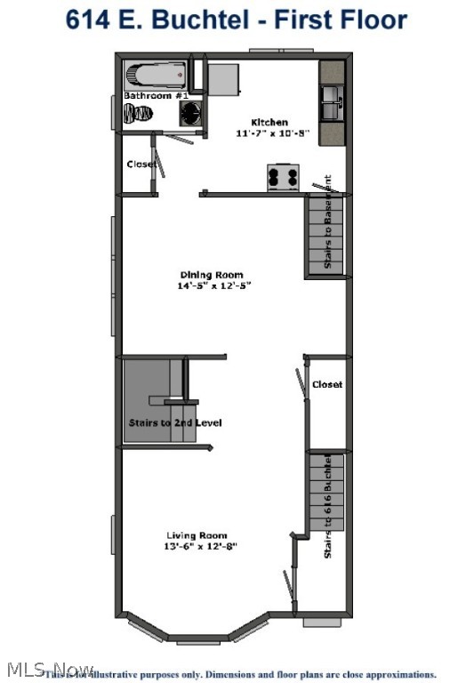
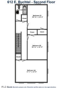
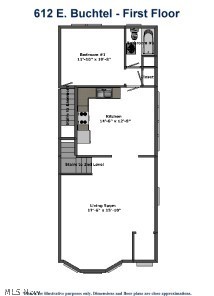
This is a great opportunity to own a wonderful University of Akron triplex! This newly renovated three unit building features large bedrooms and bathrooms, a spacious living room and a kitchen in all three units. Updates include new roof, gutters, siding, windows, electric and plumbing. Located just two blocks east of the University of Akron campus and walkable to Summa Health System, this is a fantastic opportunity to rent to students or traveling hospital staff. The property is rented through July 2023.
Features & Amenities
Interior
-
Total Bedrooms
9
-
Bathrooms
5
-
Above Grade Finished Area
4109.0
-
Basement YN
YES
-
Cooling YN
YES
-
Cooling
N/A
-
Heating YN
YES
-
Heating
Natural Gas, Forced Air
-
Pet friendly
N/A
Exterior
-
Garage
No
-
Construction Materials
Vinyl Siding
-
Parking
Paved
-
Pool
No
Area & Lot
-
Lot Size(acres)
0.101
-
Property Type
Residential Income
-
Property Sub Type
Triplex
Price
-
Sales Price
$299,900
-
Tax Amount
2242.0
-
Sq. Footage
4, 109
-
Price/SqFt
$72
HOA
-
Association
No
School District
-
Elementary School
Akron CSD - 7701
-
Middle School
N/A
-
High School
N/A
Property Features
-
Stories
3
-
Sewer
Public Sewer
Schedule a Showing
Showing scheduled successfully.
Mortgage calculator
Estimate your monthly mortgage payment, including the principal and interest, property taxes, and HOA. Adjust the values to generate a more accurate rate.
Your payment
Principal and Interest:
$
Property taxes:
$
HOA fees:
$
Total loan payment:
$
Total interest amount:
$
Location
County
Summit
Elementary School
Akron CSD - 7701
Middle School
High School
Listing Courtesy of Justin T Aikens , Keller Williams Chervenic Rlty
RealHub Information is provided exclusively for consumers' personal, non-commercial use, and it may not be used for any purpose other than to identify prospective properties consumers may be interested in purchasing. All information deemed reliable but not guaranteed and should be independently verified. All properties are subject to prior sale, change or withdrawal. RealHub website owner shall not be responsible for any typographical errors, misinformation, misprints and shall be held totally harmless.

FOUNDER
TysonHartzler
Call Tyson today to schedule a private showing.

* Listings on this website come from the FMLS IDX Compilation and may be held by brokerage firms other than the owner of this website. The listing brokerage is identified in any listing details. Information is deemed reliable but is not guaranteed. If you believe any FMLS listing contains material that infringes your copyrighted work please click here to review our DMCA policy and learn how to submit a takedown request.© 2024 FMLS.
